Wir verwenden auf dieser Website Matomo, selbst gehostet, zur Verbesserung unserer Marketingmaßnahmen. Genauere Informationen dazu erhalten Sie in unserer Datenschutzerklärung.

Familystyle

Das Zuhause, das mit Ihrer Familie wächst

Die UP TOWN HOUSES im FAMILYSTYLE sind ein Ort, an dem Kinderträume wahr werden und Eltern zur Ruhe kommen. Hier finden Sie den Raum, den Sie brauchen, um gemeinsam zu wachsen und Ihre ganz persönliche Familiengeschichte zu schreiben.

Grundrissbeispiel des ersten Obergeschoss für Kleinkinder
Grundrissbeispiel des zweiten Obergeschoss für Kleinkinder
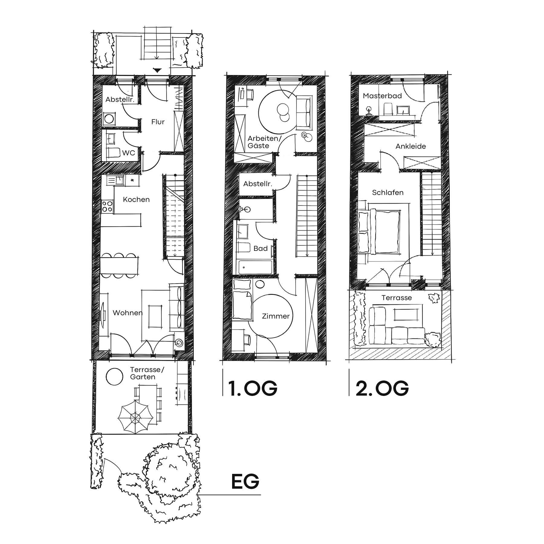
Grundrissbeispiel des 1. OG für Teenager
Grundrissbeispiel des 2. OG für Teenager
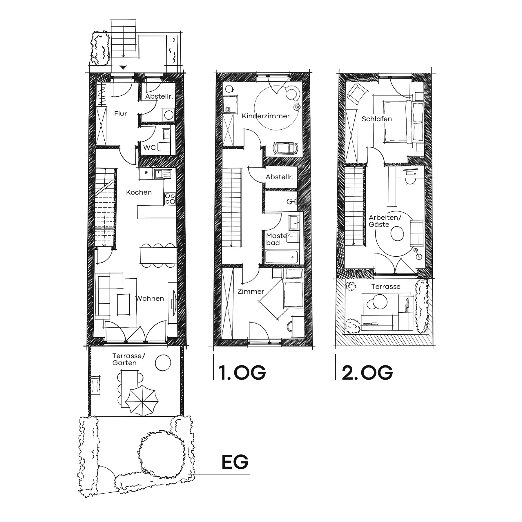
Grundrissbeispiel des 1. OG für Kinder im Alter der Grundschule
Grundrissbeispiel des 2. OG für Kinder im Alter der Grundschule
Ein kleines Kind steht im Gitterbett, hält sich fest und schaut nach links. Foto: Vera Livchak, iStock.com
Ein Mädchen liegt bei gemütlichem Lampenlich auf seinem Bett, ein Laptop neben sich und schreibt in ein Heft. Foto: svetikd, iStock.com
Ein Junge im Grundschulalter sitzt an seinem Schreibttisch, ein Heft vor sich, einen Stift in der Hand und lacht in die Kamera. Foto: evgenyatamanenko, iStock.com

Von Anfang an geborgen. Im Erdgeschoss spielt sich das Leben ab: Gemeinsam essen, spielen, lachen – und nachts in der Nähe bleiben. Ein Kinderzimmer direkt neben dem Elternschlafzimmer schenkt Sicherheit und Nähe. Im obersten Geschoss entsteht ein ruhiger Rückzugsort für Homeoffice oder die wohlverdiente Pause am Abend.

Alles da zum größer werden. Jetzt erobern die Kinder ihre eigene Etage: Das Obergeschoss wird zur Spiel-, Lern- und Kreativfläche. Die Eltern ziehen ins Dachgeschoss – mit mehr Ruhe, mehr Überblick und mehr Komfort. Ein echtes Familienhaus, das mitdenkt und mitwächst.

Individuelle Freiheit. Die Kinder werden groß – und das Zuhause bleibt flexibel. Das oberste Geschoss wird zum eigenständigen Jugendbereich mit viel Privatsphäre. Die Eltern genießen im ersten Obergeschoss ihr eigenes Bad, ein Arbeitszimmer und das gute Gefühl, dass jeder seinen Raum hat – und doch alle nah beieinander sind.

Visualisierung des Blicks durch die Terrassenfenster in den Wohn-Ess-Bereich von der Terrasse aus im Neubauprojekt Uptown Houses in der Neuen Meile in Lübeck.

Unsere Townhouses bieten mit 4,5 bis 5 Zimmern auf drei Ebenen genügend Platz für die ganze Familie. Die intelligenten Grundrisse lassen sich flexibel an Ihre Bedürfnisse anpassen.

Ein kleines Kind liegt mit einem Hund auf einem Bett. Beide schauen sich in die Augen. Foto: Pekic, iStock.com

Emotionen, die ein Zuhause schaffen

Stellen Sie sich vor, wie Ihre Kinder mit dem Hund im Garten oder im Park toben, während Sie auf der Terrasse entspannen. Oder wie Sie an einem lauen Sommerabend mit der ganzen Familie auf der Dachterrasse den Sternenhimmel beobachten. Die UP TOWN HOUSES sind Orte voller Emotionen, an denen Sie unvergessliche Erinnerungen schaffen. Hier wird aus einem Haus ein echtes Zuhause.

Und das Beste: Das Haus wächst mit Ihnen mit. Ob ein Spielzimmer für die Kleinen, ein eigenes Reich für die Teenager oder ein ruhiges Home-Office für die Eltern – hier ist alles möglich.

Familie, die gemeinsam auf einem Sofa sitzt und lachend in ein Handy schaut. Foto: filadendron, iStock.com
Visualisierung eines Townhouses in der Eingangssituation.
Ein Vater sitzt mit seiner Tochter auf den Schultern vor seinem Laptop und arbeitet. Foto: ZenSaBi, iStock.com
Visualisierung eines Arbeitszimmers im Neubauprojekt Up Town Houses in der Neuen Meile in Lübeck.

In einem UP TOWN HOUSE hat jeder seinen Platz: zum Spielen, zum Arbeiten, zum Zurückziehen. So entsteht ein Zuhause, in dem Nähe und Freiraum im Gleichgewicht sind – für kleine Persönlichkeiten und große Lebensentwürfe.

Preise & Grundrisse

Townhouse Typ 1

ca. 180 m² Wohnfläche
5 Zimmer
3 Etagen
Garten & Dachterrasse
inklusive TG-Stellplatz im Quartier
Kaufpreis ab 845.000 €

Townhouse Typ 2

ca. 140 m² Wohnfläche
4,5 Zimmer
3 Etagen
Garten & Dachterrasse
inklusive TG-Stellplatz im Quartier
Kaufpreis ab 670.000 €

Townhouse Typ 3

ca. 140 m² Wohnfläche
5 Zimmer
3 Etagen
Garten & Dachterrasse
inklusive TG-Stellplatz im Quartier
Kaufpreis ab 680.000 €

Ilka Hoyer

Bei der Entwicklung der Grundrisse war mir wichtig, dass sie mit den Bewohnern mitwachsen können. Ein Haus, das in jeder Familienphase funktioniert – ob mit kleinen Kindern, Teenagern oder wenn die Kinder längst aus dem Haus sind. Das Besondere an den UP TOWN HOUSES ist, dass man hier alles direkt vor der Tür hat, was das Familienleben leichter macht: Spielplatz, Bus, Supermarkt, Schulen und Kitas – einfach perfekt für die moderne Stadtfamilie.

Ilka Hoyer, Projektentwicklerin UP TOWN HOUSES
DIE WOHNKOMPANIE Nord

Visualisierung des Blicks durch die Terrassenfenster in den Wohn-Ess-Bereich von der Terrasse aus im Neubauprojekt Uptown Houses in der Neuen Meile in Lübeck.

Raum für Kindheit – und für alles, was dazugehört

Hier ist Platz für das echte Leben: für die ersten wackeligen Fahrversuche auf dem Fahrrad, für ein spontanes Picknick mit Freunden oder für das große Fußballspiel mit Nachbarskindern  – ohne Autoverkehr, ohne ständiges „Vorsicht!“. Stattdessen: sichere Wege, grüne Freiheit direkt vor der Tür. Ein Alltag, der sich nicht nach Einschränkungen anfühlt, sondern nach Möglichkeiten.

Was das für Sie bedeutet?

  • Keine Autos vor der Haustür – mehr Sicherheit und weniger Sorgen
  • Eltern können entspannt bleiben, Kinder dürfen unbeschwert losziehen
  • Die Nachbarschaft wird zum Spielraum – nicht zum Durchgangsort

Lübeck – Stadt mit Familienqualität

Alles, was es braucht.

Lübeck verbindet den Alltag mit kleinen und großen Erlebnissen. Wer hier lebt, profitiert von kurzen Wegen, hoher Sicherheit und einem Freizeitangebot, das Kinder und Eltern gleichermaßen begeistert. Die Ostsee ist nur wenige Kilometer entfernt – perfekt für spontane Nachmittage am Strand, Fahrradtouren oder Familienpicknicks mit Meeresrauschen.

Gleichzeitig bietet Lübeck alles, was Familien im Alltag brauchen: Spielplätze, Parks, Kitas, Schulen – und eine Innenstadt, die sich auch mit Kinderwagen oder Laufrad leicht entdecken lässt. Ob Sonntags im Museum, Eisschlecken am Markt oder Drachensteigen am Wasser – Lübeck macht es Familien leicht, das Leben gemeinsam zu genießen.

Eine Familie, die auf ihren Fahrrädern durch einen Park fahren. Foto: vgajic, istock.com
Menschen auf der Trave in Lübeck.

Kurze Wege

  • Kindergärten und Schulen direkt in der Nähe
  • Einkaufen in einem Umkreis von 600 Metern
  • 500 Meter bis zum Bahnhof
  • In weniger als einer Stunde in Hamburg
  • Nur eine halbe Stunde bis zur Ostsee
Ostseestrand von Lübeck Travemünde. Im Vordergrund Dünengras, dahinter der Turm der Wasserwacht, der Strand und die Ostsee.

Nehmen Sie gerne mit uns Kontakt auf.





Welche Townhouse-Typen interessieren Sie?

Townhouse Typ 1
Townhouse Typ 2
Townhouse Typ 3
Townhouse Special Edition

Ja, die Kontaktdaten dürfen verwendet werden, um mir Informationen zu dem Projekt zuzuschicken. Dafür dürfen die Kontaktdaten auch an den für DIE WOHNKOMPANIE Nord GmbH tätigen Vertriebspartner weitergegeben werden.*

Ich erkläre mich damit einverstanden, dass meine Daten zur Bearbeitung meines Anliegens verwendet werden. Weitere Informationen und Widerrufshinweise sind auf der Seite Datenschutz zu finden.*

Bitte alle *Pflichtfelder vollständig bzw. korrekt ausfüllen.

Datenschutzhinweis

Mit dem vorstehenden Kontaktformular können Sie eine Anfrage an uns richten. Die von Ihnen eingegebenen Daten werden über unseren Providerserver per Mail an uns weitergeleitet und nach Beendigung des Projektes Neue Meile umgehend gelöscht, sofern keine gesetzliche Aufbewahrungsfrist besteht. Eine Nutzung zu einem anderen Zweck findet nicht statt. Weitere Informationen finden Sie auf der Seite Datenschutz.